
A Smarter Home Product
for Builders
Sell architecturally designed homes - without starting every project from scratch.
nuvista. is a ready-to-offer home product designed for modern builder businesses. We supply the prefabricated structural kit delivered to site.
Builders assemble the structure and complete the home to turnkey.
Faster builds.
Predictable costs.
More projects per year.
Rethinking How Homes Are Delivered
For decades, residential construction has started the same way.
A blank page.
New designs.
New engineering.
New uncertainty.
nuvista. changes that.
It’s a repeatable architect-designed home product delivered as a prefabricated structure ready for assembly. Builders can now offer modern homes without reinventing the wheel every time.
![]() | ![]() | ![]() | ![]() |
|---|---|---|---|
![]() |
Meet the Nuvista Home

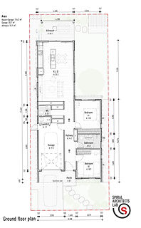
A compact, highly efficient home designed for Australian lots.
​
-
114.5m² optimised total floor area including 22m² single garage
-
2 bedrooms
-
Master bedroom with ensuite
-
Separate bathroom
-
Laundry
-
Open-plan living
-
European kitchen cabinetry included
Architecturally crafted by Spiral Architects Lab and engineered for prefabricated construction powered by Zen Haus Group.
114.5m² Architecturally Designed Home
Delivered as a prefabricated structure
$148,500.00 ex GST
Delivered to site in NSW and Victoria
Prefabricated structural kit supplied - builders assemble and complete the home to turnkey.
Delivered as a Prefabricated Kit of Parts
The nuvista. structure arrives on site ready for installation.
​
The kit includes:
​
• External wall panels
• Internal wall panels
• Floor system
• Roof panels
• Double glazed windows and sliding doors
• European kitchen cabinetry
• Structural engineering package
Builders assemble the structure and complete the home using their preferred trades and finishes.
A Product Builders Can Confidently Sell
nuvista. gives builders a ready-to-offer architect-designed home that clients immediately understand.
Instead of starting every project with custom design and engineering, builders can offer a proven home product backed by prefabrication.
The result is a home that is:
Easy for clients to understand
Efficient for builders to construct
Designed to suit modern Australian lots
A smarter way to deliver architecturally designed homes.
Built for Builder Businesses
Build Faster
Prefab structure allows rapid lock-up.
Reduce Complexity
Standardised design reduces unknowns.
Offer Architecturally Designed Homes
Without custom design costs.
Increase Project Turnover
Faster builds allow more homes per year.

Powered by Prefabrication
nuvista. homes use Zen Haus Group’s advanced prefabricated wall, floor and roof panel system.
​
Components are manufactured off-site with precision and delivered ready for installation.
​
The result:
​
Rapid structural assembly
Reduced on-site labour
Consistent construction quality
Builders then complete the home using conventional trades.
How Builders Deliver a Nuvista Home
1. Offer the home
Builders introduce the nuvista. design to their clients.
​
2. Structure delivered
Zen Haus Group supplies the prefabricated kit to site.
​
3. Build to turnkey
Builders assemble the structure and complete the home.
Meet the Nuvista Crew
nuvista. homes are delivered by a growing network of forward-thinking builders across Australia.
​
Each member of the nuvista. Crew offers the nuvista. home in their region and delivers it to turnkey.
become a nuvista builder
We are expanding the nuvista. builder network across Australia. If you're a builder looking to offer modern architect-designed homes backed by prefabrication, we’d love to talk.
​
Email us at info@zenhaus.com.au




